부자주방

부자주방

해외납품 간편문의

시공사례

효율적인 주방과 브랜딩된 인테리어의 설계 및 시공 ,컨설팅까지

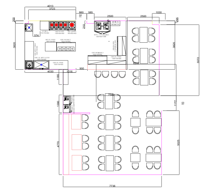
주방시공 파주 칼국수 전문점

페이지 정보

본문




6315cdd78a1ed36ab0c008950e15cef9_1766723305_8775.jpg




6315cdd78a1ed36ab0c008950e15cef9_1766723306_3672.jpg




6315cdd78a1ed36ab0c008950e15cef9_1766723306_8555.jpg



6315cdd78a1ed36ab0c008950e15cef9_1766723306_9463.PNG




6315cdd78a1ed36ab0c008950e15cef9_1766723304_9427.PNG
 

800bc74e22ffecb11a8d1d0f63888953_1774913676_1576.png