부자주방

부자주방

해외납품 간편문의

시공사례

효율적인 주방과 브랜딩된 인테리어의 설계 및 시공 ,컨설팅까지

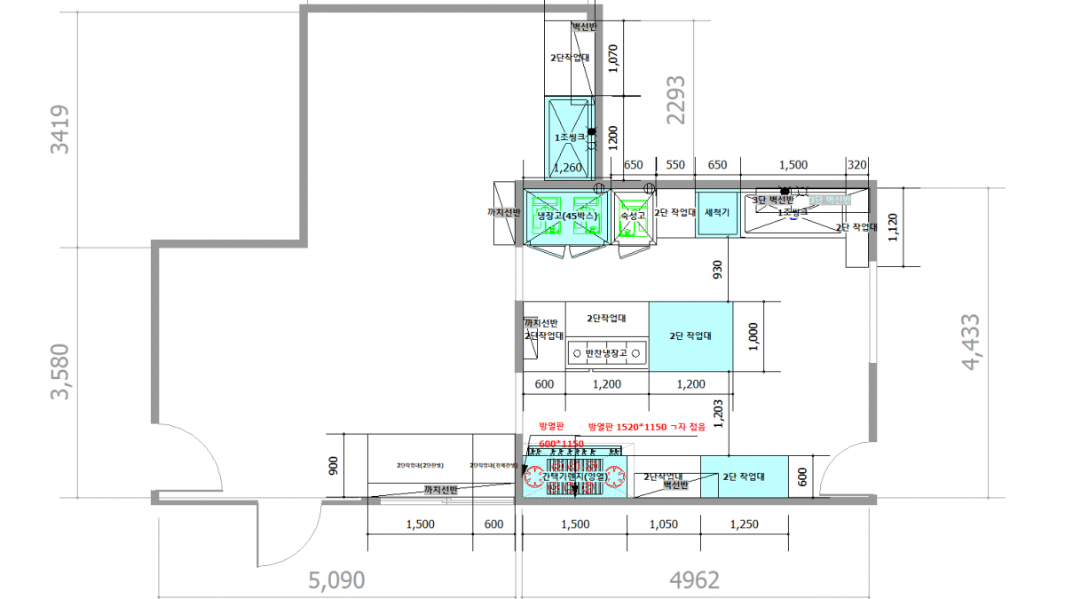
주방시공 청도 미나리 삼겹살 전문점

페이지 정보

본문




1fb8554d4e9ee02ff1fda0ba9f802a16_1762145325_5505.jpg


 
1fb8554d4e9ee02ff1fda0ba9f802a16_1762145325_5081.jpg


 
1fb8554d4e9ee02ff1fda0ba9f802a16_1762145325_6023.jpg

 

1fb8554d4e9ee02ff1fda0ba9f802a16_1762145325_6365.jpg


 
1fb8554d4e9ee02ff1fda0ba9f802a16_1762145325_436.png


800bc74e22ffecb11a8d1d0f63888953_1774915045_3222.png