부자주방

부자주방

해외납품 간편문의

시공사례

효율적인 주방과 브랜딩된 인테리어의 설계 및 시공 ,컨설팅까지

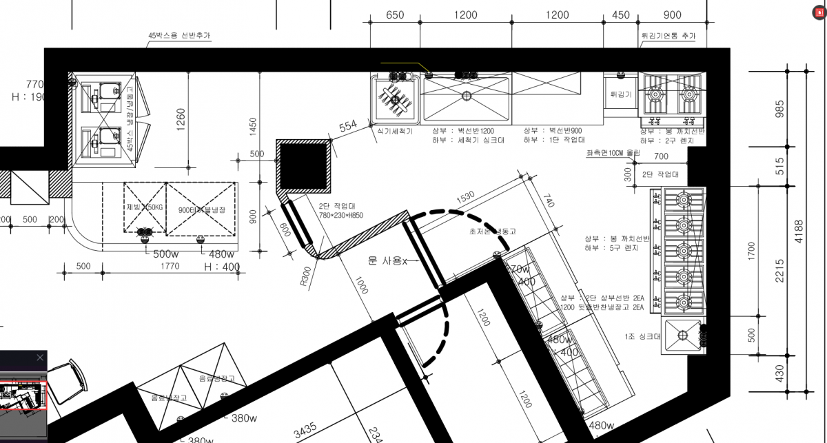
주방시공 서울 서초구 파스타파는남자(양식집)

페이지 정보

본문




b5c958173c28ba5f05b905a262d50d6c_1750050006_3973.jpg

 

b5c958173c28ba5f05b905a262d50d6c_1750050006_0972.jpg


 
b5c958173c28ba5f05b905a262d50d6c_1750050006_1878.jpg

 

b5c958173c28ba5f05b905a262d50d6c_1750050006_2401.jpg


 
b5c958173c28ba5f05b905a262d50d6c_1750050006_2888.jpg


 
b5c958173c28ba5f05b905a262d50d6c_1750050006_3443.jpg


 
b5c958173c28ba5f05b905a262d50d6c_1750050006_4501.jpg


 
b5c958173c28ba5f05b905a262d50d6c_1750050006_5085.jpg

 

b5c958173c28ba5f05b905a262d50d6c_1750050006_5624.jpg




b5c958173c28ba5f05b905a262d50d6c_1750050166_4366.png

800bc74e22ffecb11a8d1d0f63888953_1774917182_7126.png