부자주방

부자주방

해외납품 간편문의

시공사례

효율적인 주방과 브랜딩된 인테리어의 설계 및 시공 ,컨설팅까지

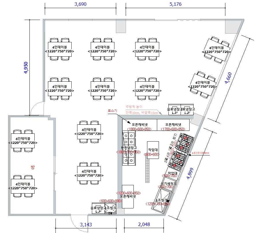
주방시공 포항 뽈찜 전문점

페이지 정보

본문




8bb431ffa43676c3c7b349a524c6a214_1747983991_013.jpg



8bb431ffa43676c3c7b349a524c6a214_1747983991_088.jpg



8bb431ffa43676c3c7b349a524c6a214_1747983991_197.jpg



8bb431ffa43676c3c7b349a524c6a214_1747983991_2722.jpg



8bb431ffa43676c3c7b349a524c6a214_1747983991_3474.jpg

 


8bb431ffa43676c3c7b349a524c6a214_1747983990_9353.jpg


 

8bb431ffa43676c3c7b349a524c6a214_1747983990_8868.jpg 


 

800bc74e22ffecb11a8d1d0f63888953_1774917381_8601.png