부자주방

부자주방

해외납품 간편문의

시공사례

효율적인 주방과 브랜딩된 인테리어의 설계 및 시공 ,컨설팅까지

주방시공 메트로안과 (구내식당)

페이지 정보

본문




b6c2438bed5999548d3ac3d48222ec69_1732674855_6463.jpg



- 시공 전 -

b6c2438bed5999548d3ac3d48222ec69_1732674397_4403.jpg




b6c2438bed5999548d3ac3d48222ec69_1732674397_613.jpg



b6c2438bed5999548d3ac3d48222ec69_1732674397_7807.jpg




b6c2438bed5999548d3ac3d48222ec69_1732674397_9934.jpg



b6c2438bed5999548d3ac3d48222ec69_1732674398_2893.jpg




- 시공 후 -b6c2438bed5999548d3ac3d48222ec69_1732674501_4717.jpg




b6c2438bed5999548d3ac3d48222ec69_1732674501_7122.jpg



b6c2438bed5999548d3ac3d48222ec69_1732674501_8934.jpg



b6c2438bed5999548d3ac3d48222ec69_1732674502_1131.jpg



b6c2438bed5999548d3ac3d48222ec69_1732674502_2753.jpg



b6c2438bed5999548d3ac3d48222ec69_1732674502_438.jpg



b6c2438bed5999548d3ac3d48222ec69_1732674502_5957.jpg



b6c2438bed5999548d3ac3d48222ec69_1732674502_7574.jpg




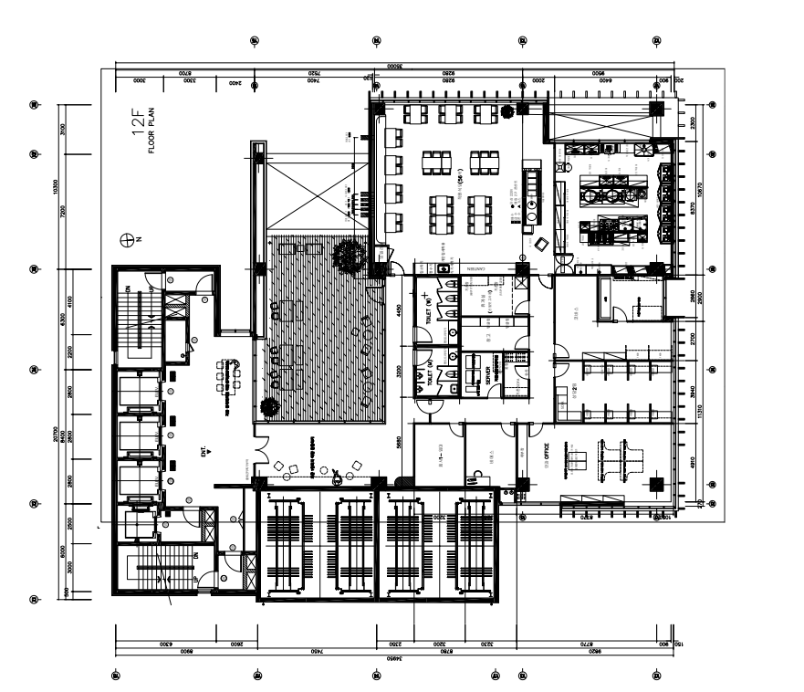
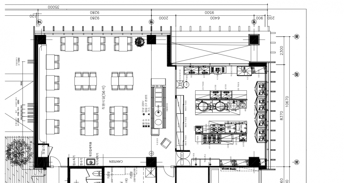
- 도면-

b6c2438bed5999548d3ac3d48222ec69_1732674524_0074.png

b6c2438bed5999548d3ac3d48222ec69_1732674524_0845.png
 


800bc74e22ffecb11a8d1d0f63888953_1774921921_7498.png