부자주방

부자주방

해외납품 간편문의

시공사례

효율적인 주방과 브랜딩된 인테리어의 설계 및 시공 ,컨설팅까지

주방시공 메트로안과 (카페)

페이지 정보

본문




b6c2438bed5999548d3ac3d48222ec69_1732675024_423.png




- 시공 전 -

b6c2438bed5999548d3ac3d48222ec69_1732674958_3931.png



b6c2438bed5999548d3ac3d48222ec69_1732674958_4605.png



b6c2438bed5999548d3ac3d48222ec69_1732674958_5349.png




- 시공 후 -

b6c2438bed5999548d3ac3d48222ec69_1732674984_7036.jpg



b6c2438bed5999548d3ac3d48222ec69_1732674984_8566.jpg



b6c2438bed5999548d3ac3d48222ec69_1732674985_1126.jpg



b6c2438bed5999548d3ac3d48222ec69_1732674985_295.jpg



b6c2438bed5999548d3ac3d48222ec69_1732674985_4571.jpg



b6c2438bed5999548d3ac3d48222ec69_1732674985_5993.png



b6c2438bed5999548d3ac3d48222ec69_1732674985_6655.png




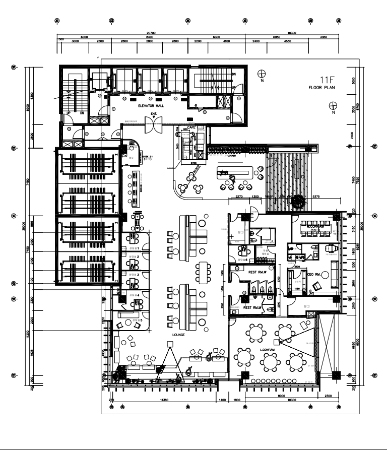
- 도면 - 

b6c2438bed5999548d3ac3d48222ec69_1732675000_5806.png




 800bc74e22ffecb11a8d1d0f63888953_1774921697_7453.png