부자주방

부자주방

해외납품 간편문의

시공사례

효율적인 주방과 브랜딩된 인테리어의 설계 및 시공 ,컨설팅까지

인테리어 범어만두 범어점

페이지 정보

본문

 



391bee8a1fb8a06fa0a2b26746acf853_1742357775_6294.jpg
 

- 공사 전 -


391bee8a1fb8a06fa0a2b26746acf853_1742357480_5558.jpg



391bee8a1fb8a06fa0a2b26746acf853_1742357480_6389.jpg



391bee8a1fb8a06fa0a2b26746acf853_1742357480_7244.jpg



391bee8a1fb8a06fa0a2b26746acf853_1742357480_7679.jpg



391bee8a1fb8a06fa0a2b26746acf853_1742357480_8053.jpg



391bee8a1fb8a06fa0a2b26746acf853_1742357997_4099.jpg



391bee8a1fb8a06fa0a2b26746acf853_1742357997_9165.jpg



391bee8a1fb8a06fa0a2b26746acf853_1742357998_4172.jpg



391bee8a1fb8a06fa0a2b26746acf853_1742357998_9322.jpg


- 공사 완료 -


391bee8a1fb8a06fa0a2b26746acf853_1742358094_5049.jpg



391bee8a1fb8a06fa0a2b26746acf853_1742358094_7421.jpg



391bee8a1fb8a06fa0a2b26746acf853_1742358094_9395.jpg



391bee8a1fb8a06fa0a2b26746acf853_1742358095_0893.jpg



391bee8a1fb8a06fa0a2b26746acf853_1742358095_3673.jpg



391bee8a1fb8a06fa0a2b26746acf853_1742358095_5475.jpg



391bee8a1fb8a06fa0a2b26746acf853_1742358095_7185.jpg



391bee8a1fb8a06fa0a2b26746acf853_1742358096_2924.jpg



391bee8a1fb8a06fa0a2b26746acf853_1742358096_4989.jpg



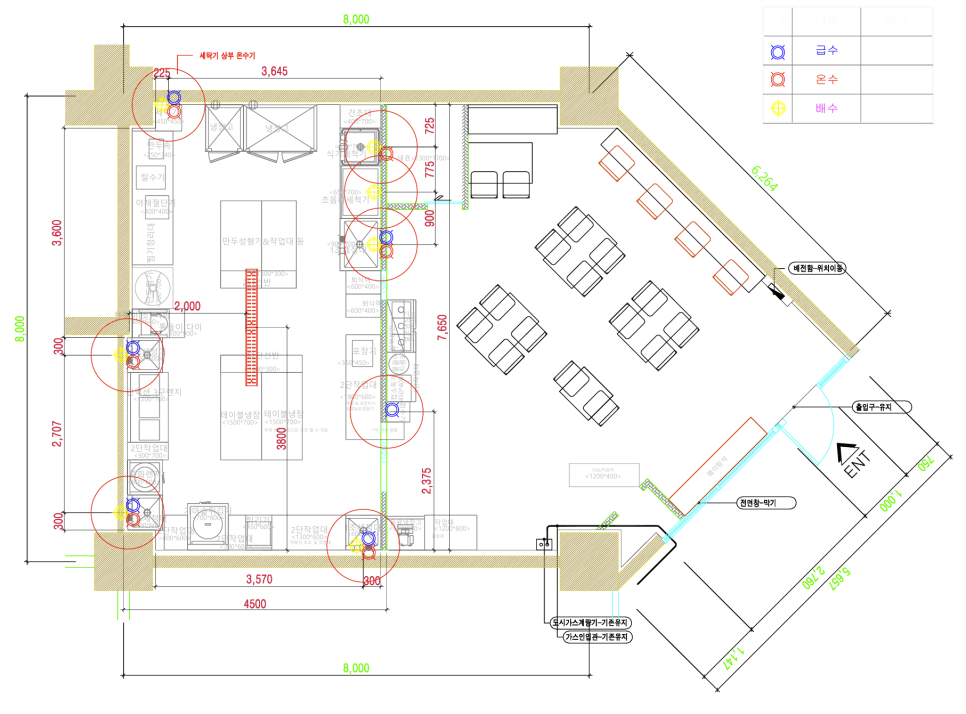
391bee8a1fb8a06fa0a2b26746acf853_1742357914_0812.png


800bc74e22ffecb11a8d1d0f63888953_1774939020_4945.png