부자주방

부자주방

해외납품 간편문의

시공사례

효율적인 주방과 브랜딩된 인테리어의 설계 및 시공 ,컨설팅까지

인테리어 지산동 테이블링담소

페이지 정보

본문


391bee8a1fb8a06fa0a2b26746acf853_1742456049_2681.jpg



- 기존 현장 -


391bee8a1fb8a06fa0a2b26746acf853_1742456082_0931.jpg
 

391bee8a1fb8a06fa0a2b26746acf853_1742456082_1386.jpg


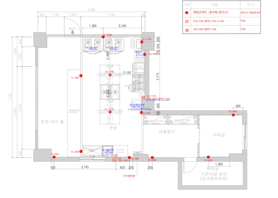
- 2D 설계 -


391bee8a1fb8a06fa0a2b26746acf853_1742456190_7891.png
 


- 공사 완료 -


391bee8a1fb8a06fa0a2b26746acf853_1742456403_0336.jpg
   

391bee8a1fb8a06fa0a2b26746acf853_1742456411_7009.jpg
 

391bee8a1fb8a06fa0a2b26746acf853_1742456421_1886.jpg
 

391bee8a1fb8a06fa0a2b26746acf853_1742456434_7539.jpg

391bee8a1fb8a06fa0a2b26746acf853_1742456443_6825.jpg

391bee8a1fb8a06fa0a2b26746acf853_1742456455_0873.jpg
 


800bc74e22ffecb11a8d1d0f63888953_1774938876_7069.png