간편문의
견적요청
시공사례
파트너신청
스마트스토어
2D/3D 도면
로그인
회원가입
FAQ
로그인
회원가입
FAQ
견적요청
시공사례
스마트스토어
파트너신청
2D/3D 도면
close
해외납품 간편문의
시공
사례
효율적인 주방과 브랜딩된 인테리어의 설계 및 시공 ,컨설팅까지
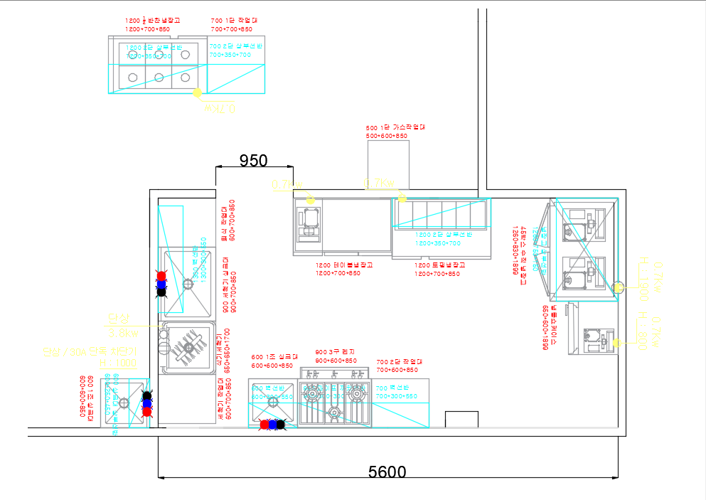
주방시공
부천 샤브샤브 전문점
페이지 정보
본문
목록